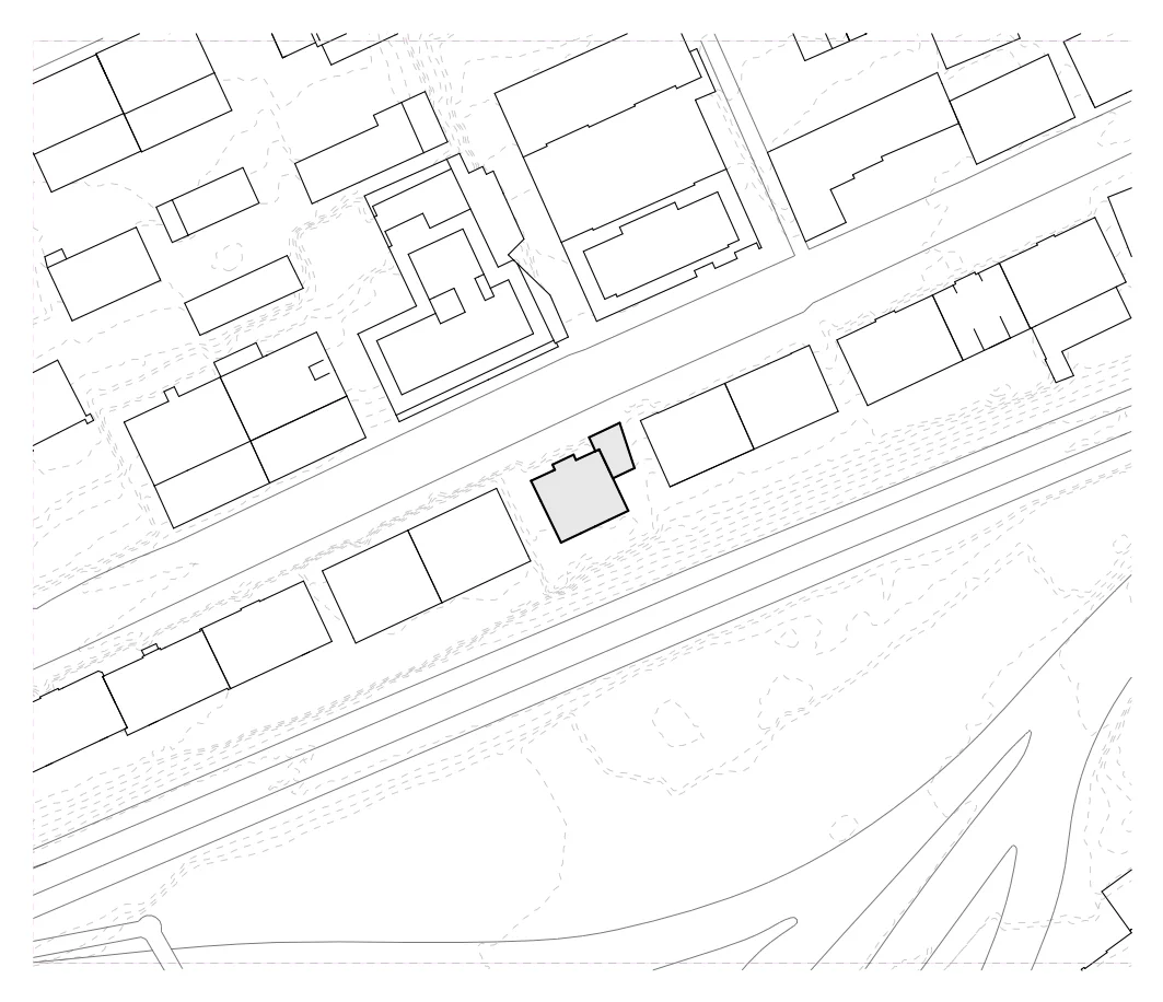
066 | Sauvegarde d'un immeuble de logements
Lieu
Neuchâtel
Procédure
Mandat direct
Etude - réalisation
2024 - en cours
Crédit photo
informel architectes
Transformation
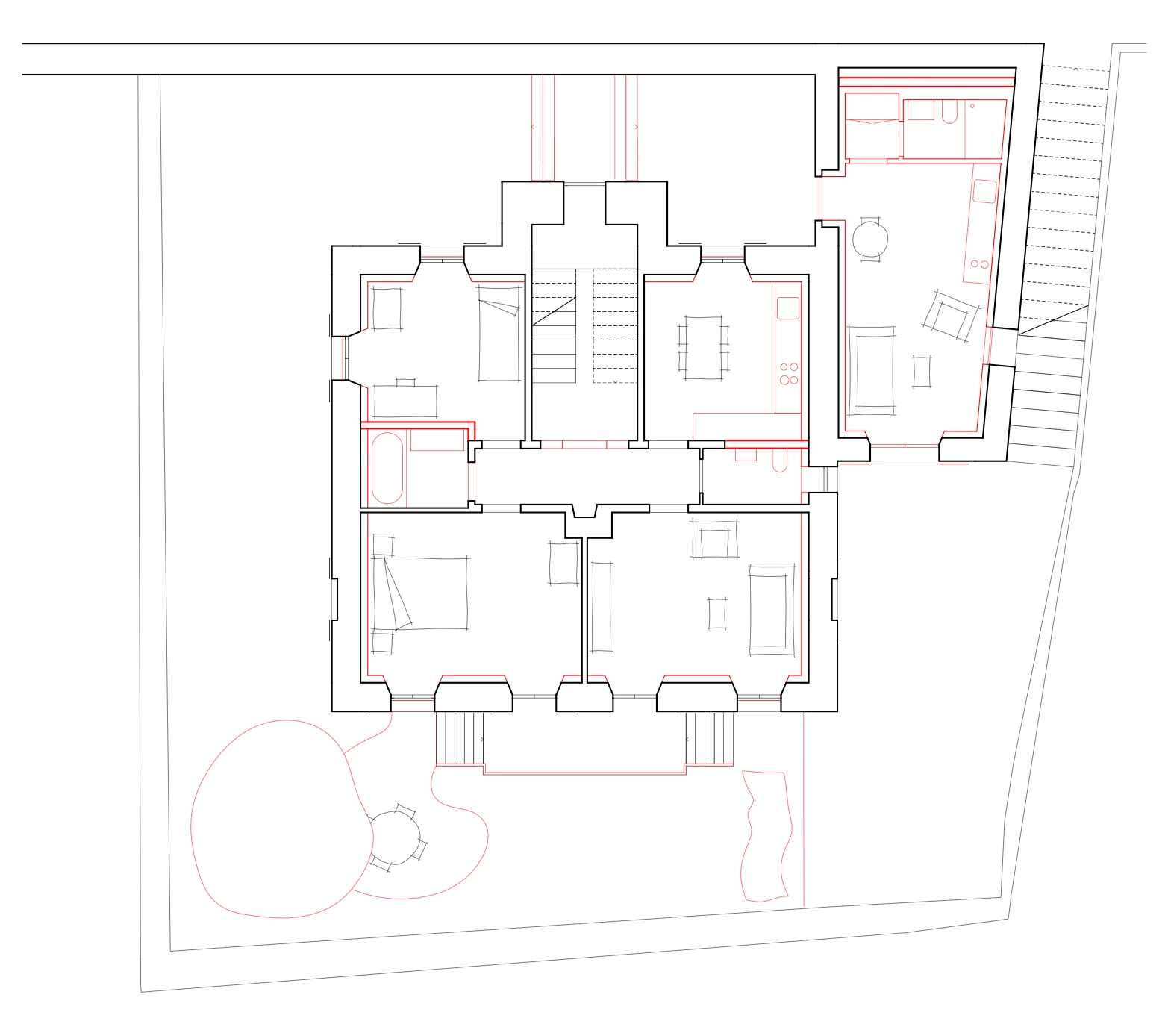
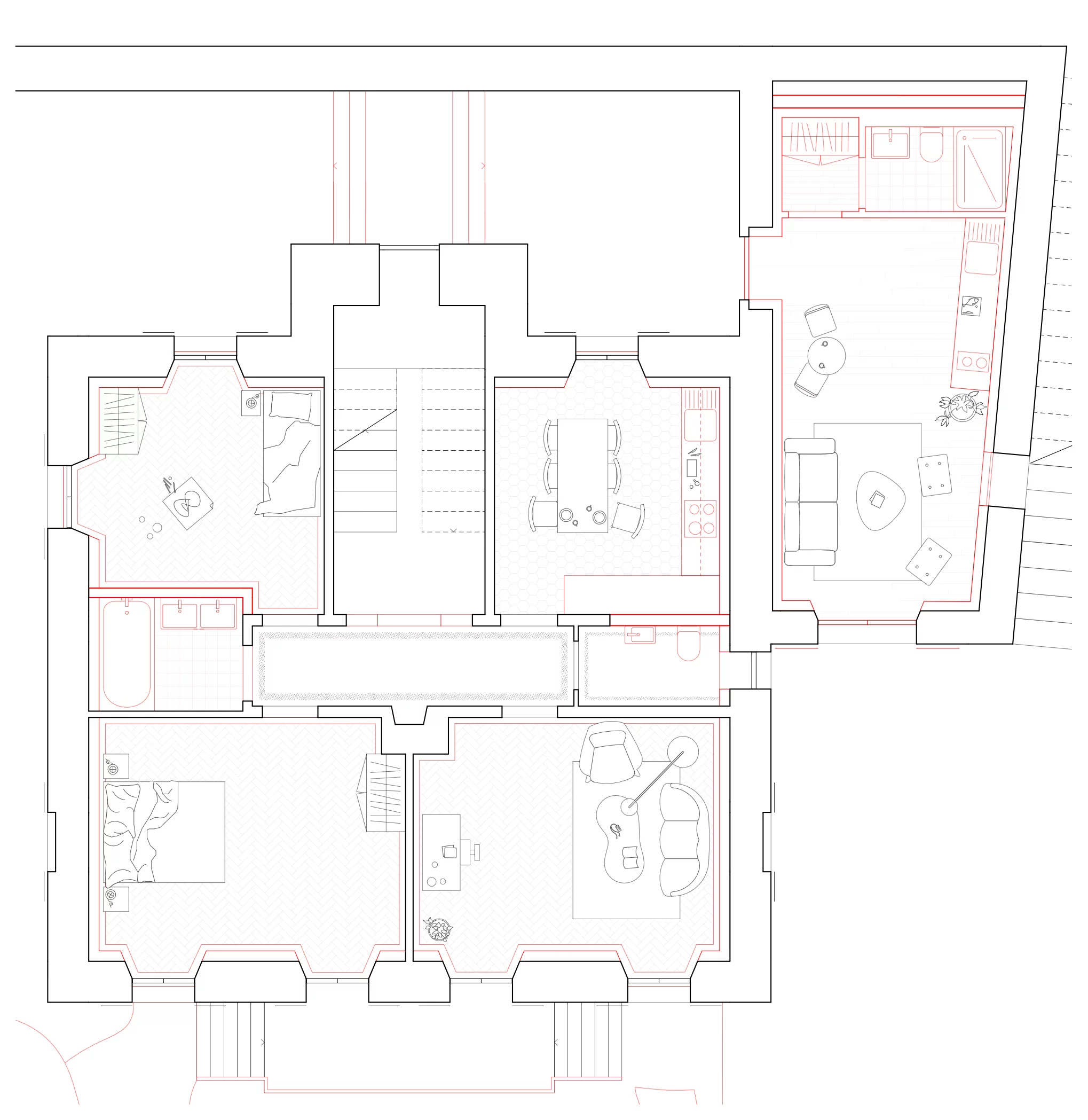
Inoccupé depuis plusieurs années, cet immeuble de 1905 est un des derniers bâtiments historiques de la rue des Parcs à Neuchâtel. La volonté de préserver l'aspect d'origine de la construction amène à une série d'interventions douces permettant de remettre en location les appartements tout en conservant le charme de l'époque.
Les typologies historiques sont maintenues et agrémentées d'une salle de bain prenant place dans l'alcôve d'origine. Dans les combles, un nouvel escalier permet d'accéder à une grande pièce supplémentaire située dans les surcombles pour créer un duplex généreux.
La mise aux normes énergétiques se fait par la pose d'une isolation intérieure doublée d'un crépi isolant permettant de maintenir l'aspect d'origine. Les parquets et terrazzo d'origine sont conservés et la fresque de l'escalier d'orgine est restaurée.
