009 | Motta 9
Lieu
Berne
Procédure
Mandat direct
Etudes - réalisation
2016-2019
Crédit photo
Thomas Brasey
Transformation
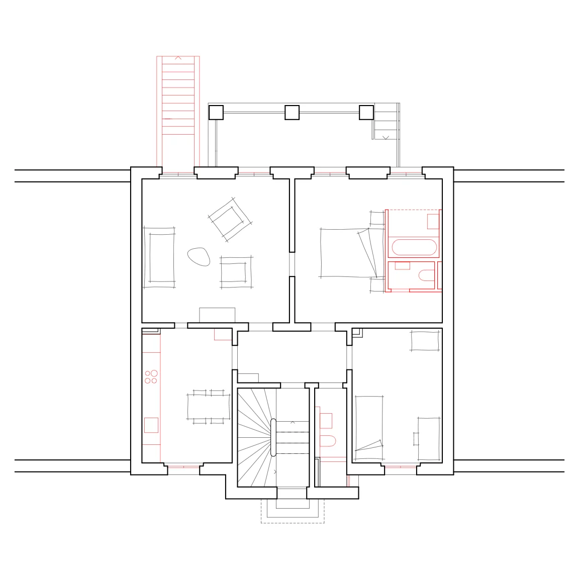
L'immeuble de 1896 est classé à l'inventaire de la ville de Berne. Il s’agit de la première transformation lourde et globale du bâtiment qui auparavant n’avait été amélioré que par petites touches. Chaque étage comporte un appartement qui est adapté aux standards de confort actuels. Sous la toiture, l’ancien grenier est aménagé afin de créer un appartement dans les combles en double hauteur. Le jardin arrière est désormais accessible à tous les habitants grâce à un nouvel accès depuis le sous-sol.
La transformation spatiale des appartements se veut minimale: dans la chambre une nouvelle boîte accueille de nouvelles salles d'eau, créant une suite parentale. Les cloisons apparues au fil des transformations sont supprimées afin de retrouver les espaces d'origine.
En collaboration avec le service des Monuments architecturaux de la Ville de Berne, un soin particulier a été apporté aux questions de physique du bâtiment. Le projet répond aux standards de confort actuels tout en préservant la valeur patrimoniale des éléments existants.
