002 | Foron 29
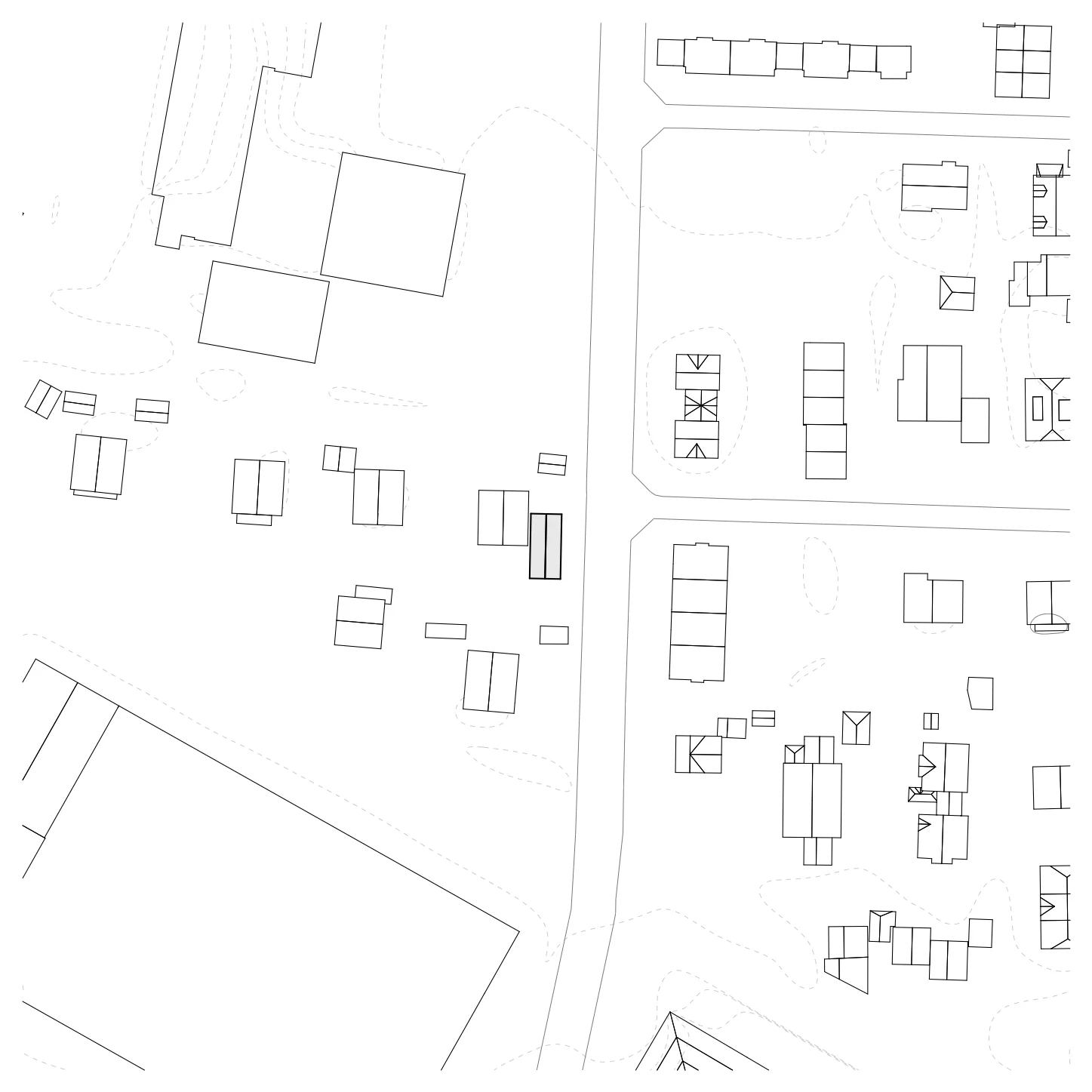
Lieu
Thônex (GE)
Procédure
Mandat direct
Étude - réalisation
2015-2019
Crédits photo
Thomas Brasey
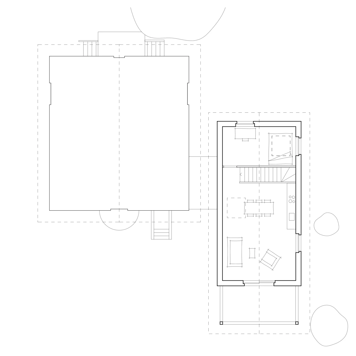
Transformation
Le défi initial de ce projet a été la construction d’une nouvelle maison avec un budget très modeste et d'obtenir des espaces accueillants. Malgré l’emprise au sol réduite du bâtiment, une grande générosité d’espace est obtenue en plaçant les espaces de vie au premier étage, bénéficiant ainsi de tout le volume sous la toiture.
Plusieurs choix constructifs ont permis de donner à cette maison un caractère singulier et d’éviter des détails onéreux. La structure en bois préfabriquée a réduit la durée du chantier et offert un bâtiment hors d’eau en une seule journée. La toiture à deux pans est entièrement recouverte d’un lès bituminé qui enrobe des carrelets pour faire les chenaux sans recourir à la ferblanterie habituelle. La façade en bois brulé est faite de planches de coffrages peu onéreuses aux dimensions aléatoires permettant une mise-en-œuvre facile en autoconstruction. À l’intérieur, des chapes brutes sont laissées apparentes.
